Imagine 64

Spatiu comercial 185 mp OPEN SPACE bloc nou - Primavera Campus

ID: FX66291 Constanta, Universitate 3
3.500€ + TVA
Descriere
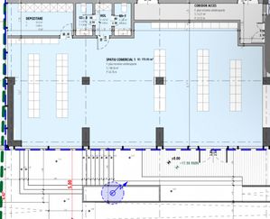
SPATIU COMERCIAL de tip Open Space la parter cu expunere stradala directa si vitrata!

Locatie: Bd.Aurel Vlaicu nr.317
La intrarea in Statiunea Mamaia - CAMPUS - UNIVERSITATEA OVIDIUS
Suprafete: Suprafata construita 175 mp
Suprafata utila interioara 159 mp
Suprafata terasa 25 mp
Suprafata utila totala 184 mp
Inaltime interioara utila 4,25 m

Amplasat la parterul celui mai nou proiect Primavara Development, in cea mai dinamica zona a orasului Constanta, chiar cu expunere la Bulevardul Aurel Vlaicu de 20 metri, acest spatiu comercial se preteaza pentru mai multe tipuri de activitati comerciale, avand o inaltime de 4,25m de la pardoseala pana la tavan, foarte versatil in ceea ce priveste posibila compartimentare interioara.


Cu siguranta unul din restaurantele consacrate se pot pozitiona aici avand in vedere ca acest spatiu comercial face parte dintr-o cladire cu 97 de apartamente destinate rezidentilor permanenti dar si turistilor, iar in vecinatatea blocului se construieste UNIVERSITY PARK.

Imobilul se va preda la alb cu urmatoarele dotarii:
-instalatie electrica
-instalatie sanitara
-posibilitate de a utiliza incalzirea prin pardoseala
-Sistem centralizat de incalzire pe imobil contorizat individual.
- tamplarie aluminium cu rupere de punte termică și geam termoizolant tripan
-pereti tencuiti mecanizat , finisati cu glet si pregatiti pentru vopsea lavabila
-terase placate cu gresie porțelanată
-fațada ventilata
-Panouri fotovoltaice pe acoperiș


La cerere se pot asigura contra cost finisaje complete interioare.



Pretul nu include TVA
Caracteristici
  • ID:FX66291
  • Nr. camere:3
  • S. utila:159.00 mp
  • S. construita:175.00 mp
  • S. curte:25.20 mp
  • S. vitrina:18.00 m
  • Front stradal:20.00 m
  • Comp.:Open space
  • Nr. bai:2
  • Terase:1
  • Pret parcare:15.000€ + TVA
  • Pret garaj:15.000€ + TVA
  • An constructie:2024
  • Regim inaltime:S+P
Specificatii
Curent
Apa
Canalizare
Gaz
Centrala imobil
Izolatie Exterior
Ferestre PVC
Ferestre Aluminiu
Exterior cladire
Apometre
Contor caldura
Localizare
Dan Ivanof
Broker Imobiliar
Esti interesat de aceasta proprietate ?