Imagine 64

Spațiu office 125 mp utili | Etaj 1 | Clădire 2026 | Destinație birou | Parcare

ID: P246225 Constanta, ICIL 46
249.000€ + TVA
Descriere
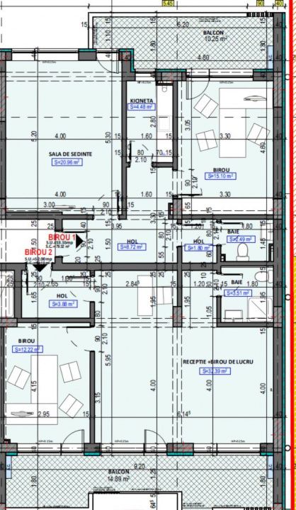
Spațiu de birouri situat in zona ICIL, rezultat din unificarea a două unități alăturate, la etajul 1 al unei clădiri noi finalizate în 2026. Destinația „birou” este menționată în acte.

Suprafață utilă totală: 125 mp (inclusiv terase).

Suprafețe:

105,55 mp utili interior

2 terase: 10,25 mp și 9,20 mp

Compartimentare:

4 birouri

zonă de recepție

2 băi

chicinetă

holuri de acces

2 terase

Spațiul se predă „la roșu”, ceea ce permite configurarea, compartimentarea și finisarea în funcție de activitate și necesități.

Este potrivit pentru sediu firmă, IT, contabilitate, consultanță, arhitectură, servicii juridice sau activități care presupun lucru cu publicul și organizare pe departamente.

Doua locuri de parcare disponibile opțional la prețul de 15.000 euro + TVA / loc.
Caracteristici
  • ID:P246225
  • Nr. camere:4
  • S. utila:105.55 mp
  • Comp.:Compartimentat
  • Etaj:Etaj 1
  • Nr. bai:2
  • Terase:2
  • Nr. parcari:2
  • Pret parcare:30.000€ + TVA
  • An constructie:2026
  • Structura rezistenta:BCA
  • Tip imobil:Bloc
  • Regim inaltime:P+3
Specificatii
Curent
Apa
Canalizare
Gaz
Acces internet
Izolatie Exterior
Bloc izolat termic
Apometre
Contor caldura
Contor gaz
Nemobilat
Control electric individual
Localizare
Dan Ivanof
Broker Imobiliar
Esti interesat de aceasta proprietate ?